🏠 Конструкционные решения (КР) проекта 1-этажного дома площадью 193,91 м² в Москве | Интересный контент в группе Архитектурное бюро Академик Строй в ОК (Одноклассники)
Интересно

🏠 Конструкционные решения (КР) проекта 1-этажного дома площадью 193,91 м² в Москве | Интересный контент в группе Архитектурное бюро Академик Строй в ОК (Одноклассники)

🏠 Конструкционные решения (КР) проекта 1-этажного дома площадью 193,91 м² в Москве | Интересный контент в группе Архитектурное бюро Академик Строй в ОК (Одноклассники)

🏠 Конструкционные решения (КР) проекта 1-этажного дома площадью 193,91 м² в Москве


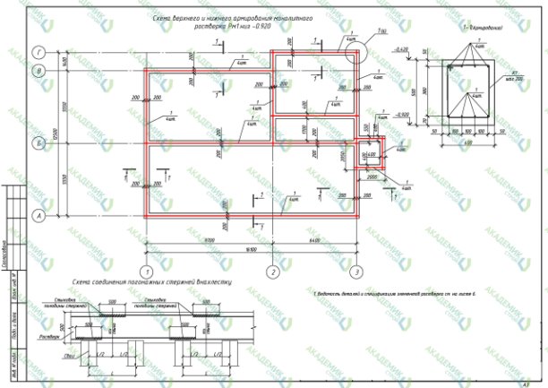
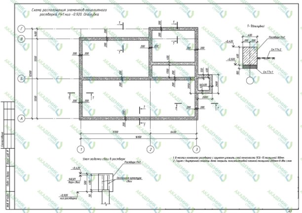
🤝 Одноэтажный дом с гаражом, террасой, крыльцом и пятью жилыми помещениями
📌 На первом этаже — тамбур, холл, кабинет, три комнаты, две кладовые, кухня-гостиная, два санузла, гардероб, ИТП, гараж, крыльцо, терраса
Больше Конструкционные решения (КР) проектов — https://akademik-stroy.ru/proectirovanie/konstruktivnyj-proekt/

🏠 Конструкционные решения (КР) проекта 1-этажного дома площадью 193,91 м² в Москве | Интересный контент в группе Архитектурное бюро Академик Строй в ОК (Одноклассники)

🏠 Конструкционные решения (КР) проекта 1-этажного дома площадью 193,91 м² в Москве | Интересный контент в группе Архитектурное бюро Академик Строй в ОК (Одноклассники)

🏠 Конструкционные решения (КР) проекта 1-этажного дома площадью 193,91 м² в Москве | Интересный контент в группе Архитектурное бюро Академик Строй в ОК (Одноклассники)

🏠 Конструкционные решения (КР) проекта 1-этажного дома площадью 193,91 м² в Москве | Интересный контент в группе Архитектурное бюро Академик Строй в ОК (Одноклассники)

🏠 Конструкционные решения (КР) проекта 1-этажного дома площадью 193,91 м² в Москве | Интересный контент в группе Архитектурное бюро Академик Строй в ОК (Одноклассники)

🏠 Конструкционные решения (КР) проекта 1-этажного дома площадью 193,91 м² в Москве | Интересный контент в группе Архитектурное бюро Академик Строй в ОК (Одноклассники)

🏠 Конструкционные решения (КР) проекта 1-этажного дома площадью 193,91 м² в Москве | Интересный контент в группе Архитектурное бюро Академик Строй в ОК (Одноклассники)

🏠 Конструкционные решения (КР) проекта 1-этажного дома площадью 193,91 м² в Москве | Интересный контент в группе Архитектурное бюро Академик Строй в ОК (Одноклассники)

🏠 Конструкционные решения (КР) проекта 1-этажного дома площадью 193,91 м² в Москве | Интересный контент в группе Архитектурное бюро Академик Строй в ОК (Одноклассники)

Средний рейтинг
0 из 5 звезд. 0 голосов.