🏠 Конструкционные решения (КР) проекта 2-этажного дома площадью 521,67 м² в поселении Сосенское | Интересный контент в группе Архитектурное бюро Академик Строй в ОК (Одноклассники)
Интересно

🏠 Конструкционные решения (КР) проекта 2-этажного дома площадью 521,67 м² в поселении Сосенское | Интересный контент в группе Архитектурное бюро Академик Строй в ОК (Одноклассники)

🏠 Конструкционные решения (КР) проекта 2-этажного дома площадью 521,67 м² в поселении Сосенское | Интересный контент в группе Архитектурное бюро Академик Строй в ОК (Одноклассники)

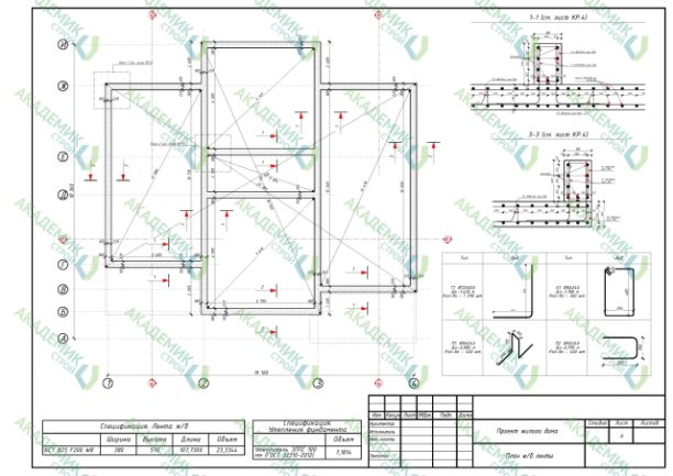
🏠 Конструкционные решения (КР) проекта 2-этажного дома площадью 521,67 м² в поселении Сосенское


🤝 Двухэтажный дом с жилой площадью 207,22 м², четыремя спальнями. кабинетом, террасой, крыльцом и несколькими балконами
📌 На первом этаже — тамбур, ИТП, два гардероба, постирочная, два санузла, холл, спальня, кладовая, кухня-столовая, гостиная, крыльцо, терраса
📌 На втором этаже — холл, кабинет, три спальни (две детские и одна основная), три гардероба, два санузла, две лоджии, два балкона
Больше Конструкционные решения (КР) проектов — https://akademik-stroy.ru/proectirovanie/konstruktivnyj-proekt/

🏠 Конструкционные решения (КР) проекта 2-этажного дома площадью 521,67 м² в поселении Сосенское | Интересный контент в группе Архитектурное бюро Академик Строй в ОК (Одноклассники)

🏠 Конструкционные решения (КР) проекта 2-этажного дома площадью 521,67 м² в поселении Сосенское | Интересный контент в группе Архитектурное бюро Академик Строй в ОК (Одноклассники)

🏠 Конструкционные решения (КР) проекта 2-этажного дома площадью 521,67 м² в поселении Сосенское | Интересный контент в группе Архитектурное бюро Академик Строй в ОК (Одноклассники)

🏠 Конструкционные решения (КР) проекта 2-этажного дома площадью 521,67 м² в поселении Сосенское | Интересный контент в группе Архитектурное бюро Академик Строй в ОК (Одноклассники)

🏠 Конструкционные решения (КР) проекта 2-этажного дома площадью 521,67 м² в поселении Сосенское | Интересный контент в группе Архитектурное бюро Академик Строй в ОК (Одноклассники)

🏠 Конструкционные решения (КР) проекта 2-этажного дома площадью 521,67 м² в поселении Сосенское | Интересный контент в группе Архитектурное бюро Академик Строй в ОК (Одноклассники)

🏠 Конструкционные решения (КР) проекта 2-этажного дома площадью 521,67 м² в поселении Сосенское | Интересный контент в группе Архитектурное бюро Академик Строй в ОК (Одноклассники)

🏠 Конструкционные решения (КР) проекта 2-этажного дома площадью 521,67 м² в поселении Сосенское | Интересный контент в группе Архитектурное бюро Академик Строй в ОК (Одноклассники)

🏠 Конструкционные решения (КР) проекта 2-этажного дома площадью 521,67 м² в поселении Сосенское | Интересный контент в группе Архитектурное бюро Академик Строй в ОК (Одноклассники)

Средний рейтинг
0 из 5 звезд. 0 голосов.